For RentWarehouseUnverified

New Build Warehouse / Trade Counter Units for Rent at Paisley Park, Pant Industrial Estate, Merthyr Tydfil, CF48 2SR.

Paisley Park, Pant Industrial Estate, Dowlais, Merthyr Tydfil, CF48 2SR

New Build Warehouse / Trade Counter Units for Rent at Paisley Park, Pant Industrial Estate, Merthyr Tydfil, CF48 2SR.
Photos via Knight Frank - Rhys Price
Rent
£28,000 pa
Size
3,542 sq ft
Listed
15 days ago

Property Description

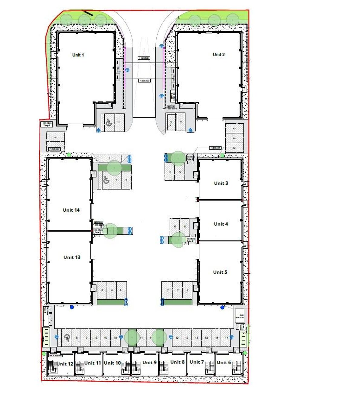
The development offers a range of detached, semi-detached and terraced industrial units of steel portal frame construction with pitched roofs occupying a self-contained site with the provision for gated access. There will be 14 units in total, finished to the following specification: • Minimum eaves height of 6m • Level access roller shutter door • Glazed pedestrian entrance • Three phase power • Allocated car parking • BREEAM ‘Very Good’ compliance

Total annual occupancy cost

Estimate only — confirm exact figures with the agent.

Rent
£28,000
Total per year
£28,000
£2,333 / month≈ £7.91 / sq ft / year
Agent hasn’t listed rates or service charge — ask them below.

Documents

Unverified Listing

This listing was sourced from public records and has not been verified by the agent. Claim it free to verify, add photos and receive direct enquiries.

K
Knight Frank - Rhys Price

Send Enquiry

All enquiries sent and tracked via CommercialUK

Need help closing?

Solicitors, surveyors, commercial finance, fire safety, fit-out — vetted firms we’d use ourselves.

See trusted partners
Are you the agent?

Claim this listing to verify it, add your branding and photos, and start receiving direct enquiries.

Claim This Listing Free